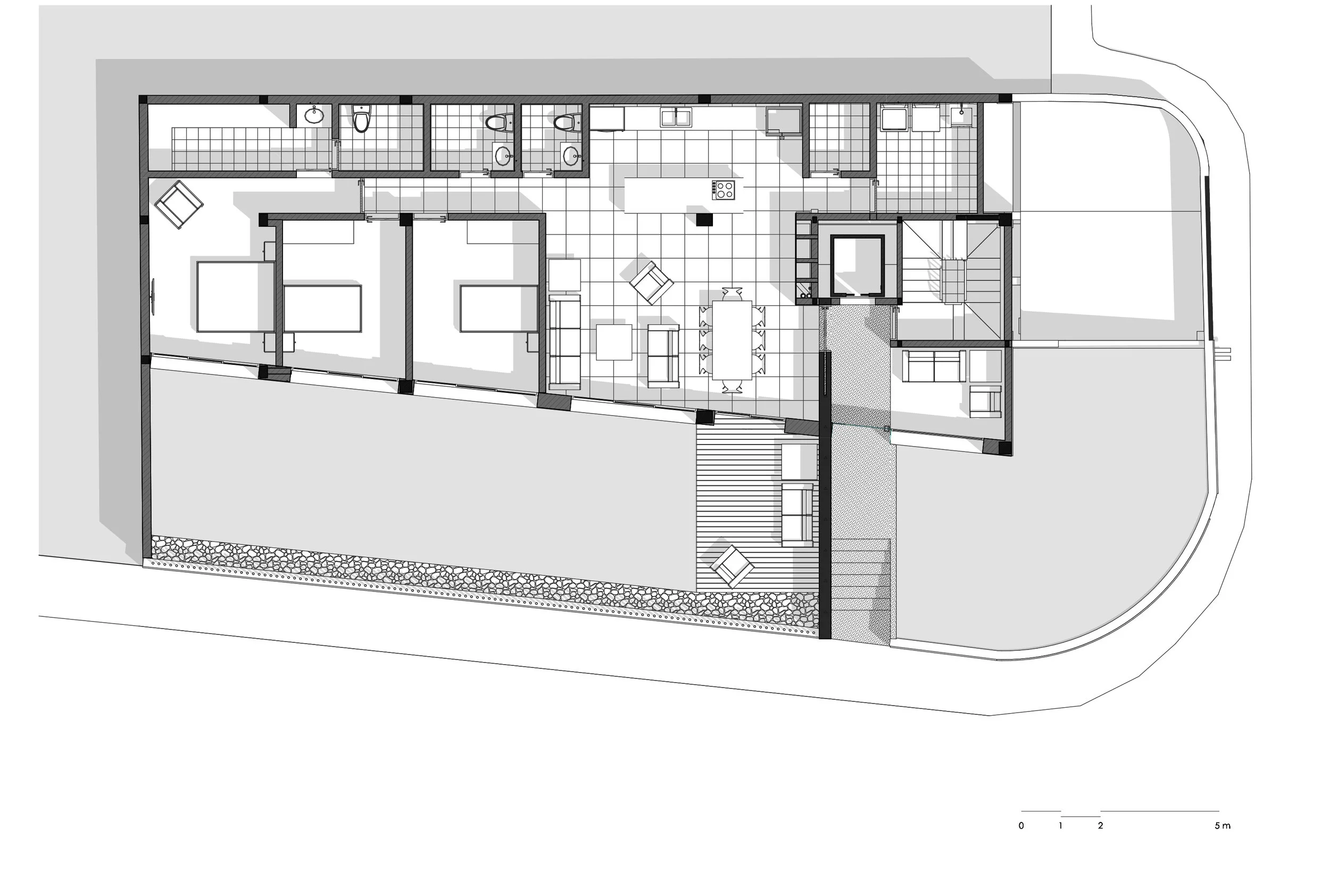
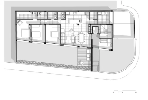
La Casa CB es un proyecto de vivienda residencial, donde se busca generar espacios flexibles que se abren a las vistas del Cerro Cojitambo. Al igual que la muchos de nuestros proyectos, esta vivienda la realiza con elementos prefabricados garantizando así la eficiencia constructiva.
Contextualización
El proyecto se ubica en el sector de Jadán, al sureste de Cuenca. Se trata de un terreno bastante irregular con topografía sinuosa que se abre hacia las montañas. Esta condición se aprovecha para resolver la planta baja de la casa y contar con una estructura que se acopla al terreno.
Si bien el proyecto cuenta con dos plantas, aunque prácticamente se desarrolla en un sólo nivel. Cuenta con con sala, comedor, cocina, baños, bodegas y tres dormitorios, mientras que la planta alta es únicamente de esparcimiento, albergando áreas de recreación y un mini estudio.
Innovación constructiva con elementos prefabricados
El uso de elementos prefabricados se ha vuelto una constante en nuestros diseños y este proyecto no es la excepción. El edificio se diseña así bajo criterios de modulación y eficiencia constructiva gracias al uso de elementos prefabricados como: zapatas, muros de contención, columnas, vigas cargadoras y viguetas.
Diseño: 2021
Construcción: 2022 - 2023
Diseño, Proyecto Ejecutivo y Dirección Arquitectónica: Isabel Carrasco, Ana Llerena
Estructura: RFV Construcciones
Colaboración: Paula Narváez, Ana Belén Torres
El proyecto Prodentec es un edificio comercial para la empresa que lleva el mismo nombre, cuyo giro de negocio es la venta de equipos y suministros odontológicos. El edificio busca generar espacios flexibles que permitan crear varios escenarios en función de la dinámica y crecimiento de la empresa, sin dejar de lado la eficiencia constructiva gracias al uso de elementos prefabricados.
Contextualización
El proyecto se ubica en la parroquia Bellavista, al noroeste de la ciudad de Cuenca, cerca de un importante eje vial. El sitio tiene una geometría predominantemente alargada en su eje este-oeste y es esquinero, donde predomina un desnivel considerable de casi 3 metros en su lado más corto (eje norte-sur). Esta condición se aprovecha para resolver el sótano de parqueadero y bodegas, para permitir la entrada de un trailer por la calle lateral con el uso de una rampa pequeña y de poca pendiente, que optimiza el espacio; además permite que talleres y bodegas puedan contar con ventilación natural a este espacio. El proyecto se desarrolla en tres niveles comerciales y una terraza accesible desde donde se goza de increíbles vistas del Centro Histórico y las montañas del sur de la ciudad.
Optimización del espacio
El proyecto se resuelve en una planta baja comercial de acceso directo para el público, una planta intermedia de showroom donde se exhiben equipos de gran tamaño y finalmente una planta de oficinas, aula de capacitación y cafetería para el personal y visitantes. Todas las oficinas del edifico son colocadas en la fachada posterior del edificio, lo que permite un mejor aislamiento del ruido de la gran avenida y una iluminación natural óptima para el trabajo de escritorio, mientras que, hacia la fachada frontal se colocan los espacios comerciales y de esparcimiento (cafetería) bañados por luz cálida en las horas de la tarde.
Optimización de las instalaciones
Las zonas húmedas, los ductos de las instalaciones y las circulaciones verticales se concentran en el centro del edificio, permitiendo que las alas del mismo queden libres y flexibles a nuevos usos. De este gran núcleo, parten dos grandes ramales, cubiertos con cielo raso de madera, para las matrices principales de las redes de datos, tuberías hidrosanitarias e instalaciones eléctricas, fuera de ellas las instalaciones quedan vistas brindando esa adaptabilidad futura tan anhelada.
En el mismo sentido, dentro de los espacios de showroom se usan luminarias con riel, es decir, permiten que la iluminación se mueva a la largo de la misma y se aumente o reduzca la cantidad de spots dependiendo de la exposición que se realice.
Innovación constructiva con elementos prefabricados
El uso de elementos prefabricados se ha vuelto una constante en nuestros diseños y este proyecto no es la excepción. El edificio se diseña así bajo criterios de modulación y eficiencia constructiva gracias al uso de elementos prefabricados como: zapatas, muros de contención, columnas, vigas cargadoras, losas TT y huellas para escalera. El éxito del proyecto se logra gracias a la coordinación con el equipo de ingenieros desde la primera etapa de diseño, así se dibujan todos los detalles estructurales, arquitectónicos e instalaciones mediante sistemas BIM. En obra, durante la dirección arquitectónica se controlan los detalles mediante el BIMx optimizando tiempos y ahorro de recursos.
Diseño: 2019
Construcción: 2020 - 2022
Diseño, Proyecto Ejecutivo y Dirección Arquitectónica: Isabel Carrasco, Ana Llerena
Estructura: RFV Construcciones
Colaboración: Paula Narváez, Ana Belén Torres
El proyecto La Calera II resuelve un programa de vivienda enfocado en la habitabilidad como medio para mejorar la calidad de vida de sus usuarios y en la eficiencia constructiva a través del uso de un sistema constructivo con elementos prefabricados.
Contextualización
El proyecto se ubica en la parroquia Yanuncay, al suroeste de la ciudad de Cuenca, cerca de un importante eje vial. El sitio tiene una geometría predominantemente alargada en su eje este-oeste, con un frente y profundidad de alrededor de 52 metros y 21 metros, respectivamente. Adicionalmente, en el terreno existe un desnivel considerable de casi 3 metros en su lado más corto (eje norte-sur). Esta condición se aprovecha para resolver un semi sótano de parqueadero que, por un lado no requirió una gran excavación, y por el otro, cuenta con ventilación e iluminación natural a lo largo de su extensión. Sobre el semisótano, el proyecto se desarrolla en tres niveles de apartamentos y una terraza accesible como espacio comunal desde donde se disfrutan de agradables vistas hacia los cerros de Guzho, Uchuloma y las montañas del noroeste de la ciudad.
Habitabilidad y optimización del espacio
Preocupadas por dar lugar a una diversidad de familias, y opuestas al estereotipo de la familia tipo para la cual usualmente se diseña en los proyectos de vivienda, en el edificio se resuelven 12 apartamentos de 4 tipologías diferentes. La geometría del terreno se aprovecha para diseñar las unidades de vivienda con ventanas hacia dos fachadas (norte y sur), garantizando excelentes condiciones de iluminación y ventilación cruzada. El ruido del sector se mitiga cerrando la fachada hacia la vía de mayor ruido, ubicando la zona de descanso con ventanas más pequeñas hacia parte más silenciosa del terreno, y utilizando una espuma aislante en los perfiles de aluminio de las ventanas. La zona que acoge las actividades colectivas de la familia se amplía con el uso de un gran ventanal que se abre hacia un balcón de uso flexible.
Cada tipología mantiene la misma organización funcional con respecto al edificio, así, todos los apartamentos orientan su zona social hacia el frente (fachada norte), su zona de descanso hacia la parte posterior (fachada sur) y concentran las zonas húmedas en una sola línea en la mitad del bloque, facilitando las instalaciones hidrosanitarias. La alargada geometría del sitio ayuda a organizar el edificio con dos núcleos de gradas que reducen a cero el área de circulación horizontal para ingresar a cada unidad habitacional. De igual manera, una adecuada ubicación de los vestíbulos de ingreso y distribución de los espacios, reduce significativamente el área de circulación interior de las viviendas.
Innovación constructiva con elementos prefabricados
Junto con el encargo, se asume el reto de diseñar el edificio con elementos prefabricados de hormigón pretensado, novedoso sistema en nuestro medio para esta escala de proyecto, donde es más utilizado para obras de infraestructura ingenieril. El edificio se diseña así bajo criterios de modulación y eficiencia constructiva gracias al uso de elementos prefabricados como: zapatas, muros de contención, columnas, vigas cargadoras, losas TT y huellas-contrahuellas. El éxito del proyecto se logra gracias a la coordinación con el equipo de ingenieros desde la primera etapa de diseño, así se dibujan todos los detalles estructurales, arquitectónicos e instalaciones. Los elementos pretensados permiten alcanzar luces de hasta 9,5 metros con un peralte de solo 35 centímetros. El uso de elementos prefabricados izados con grúas y el control de un proyecto dibujado en su totalidad, permite la optimización de recursos y tiempos durante la construcción del edificio.
FINALISTA en el Premio Nacional, Categoría Multifamiliar de la Bienal de Arquitectura de Quito (BAQ) 2022
Mención de Honor del Concurso OPERA PRIMA de la Revista Trama, año 2021.
Publicada en la Revista Trama No. 162, año 43
Diseño Arquitectónico 2014 · Construcción 2018-2020
Diseño Arquitectónico: Fernanda Aguirre, Isabel Carrasco
Proyecto Ejecutivo y Dirección Arquitectónica: Isabel Carrasco, Ana Llerena
Estructura y Construcción: RFV Construcciones
Colaboración de: Sebastian Auquilla, Jonnathan Aguirre
Posterior a la obtención del Segundo Lugar en el Concurso del Pabellón Sacha, nos contactó la empresa Novopan del Ecuador quienes deseaban construir el Pabellón (anteriormente planteado) en el Jardín Botánico de Quito.
Se elaboraron los planos del Proyecto Ejecutivo adaptando el proyecto a los materiales existentes.
Diseño y Construcción: 2018
Proyecto Ejecutivo: Santiago Carvajal - Ana Llerena
Proyecto particular, en el cual se desarrolla un departamento por piso para cada grupo familiar que componen los promotores.
Se elaboran los planos del Proyecto Ejecutivo, pensando hasta el último detalle. De igual manera, se coordinan las ingenierías y se dejan los planos listos para la fase constructiva.
Diseño: 2016
Edificio no construido
Diseño Anteproyecto: Fernanda Coello
Proyecto Ejecutivo: Ana Llerena - Isabel Carrasco
Colaboración de: Sebastian Auquilla - Leonardo León.
Proyecto encargado por la Municipalidad de Cuenca a través de su Empresa Municipal de Servicios de Cementerios, Salas de Velaciones y Exequias de la ciudad de Cuenca (EMUCE-EP) y las 9 familias que perdieron a sus seres queridos en cuestionadas operaciones policiales, esperando que estas acciones no sean olvidadas y que los nombres de las víctimas sean reclamados con un monumento a los Derechos Humanos. El sitio designado dentro del cementerio municipal consistió en una rotonda con un terreno inclinado en su lado norte. La escultura central, una mano convertida en la Paloma de la paz, se levanta en el medio de la rotonda, mientras que una pared de 11 metros de largo se encuentra contra la pendiente. La pared contiene una frase pronunciada por el Papa Juan Pablo II y las urnas de las víctimas. El proyecto se insertó en el contexto de una manera sutil mediante el uso de una geometría simple y los mismos colores que las construcciones circundantes. El monumento incluye un banco donde las personas pueden descansar y recordar a sus familias.
https://twitter.com/EMUCEEP/status/675355873577930752
http://www.eltiempo.com.ec/noticias/sucesos/9/351131/monumento-a-derechos-humanos
Año de Diseño: 2015
Diseño y Proyecto Ejecutivo: Isabel Carrasco - Ana Llerena.
Colaboración de: Sebastian Auquilla - Jonnathan Aguirre
El proyecto consistió en la regeneración física, ambiental y funcional del campus principal de la Universidad de Cuenca. El objetivo era convertir esta instalación en un parque-extensión del corredor verde del río Tomebamba. Se propusieron cuatro acciones estratégicas: renovar y reintegrar espacios físicos; restaurar, recuperar y promover espacios verdes; crear accesos y caminos inclusivos; y generar programas colectivos.
Diseño: 2014
Construcción: 2015
Diseño y Proyecto Ejecutivo: Fernanda Aguirre, Isabel Carrasco y Cristian Sotomayor.
Diseño Interior para cafetería en la ciudad de Quito. Se trata de un local de 60 m2, donde se quería contar con varios ambientes, desde espacios para tomarse un cafe a solas, hasta otros más cómodos con sofás. El espacio busca ser acogedor, aristocrático, pero con un toque moderno.
Diseño: 2017
No construido
Diseño: Ana Llerena
Proyecto de Diseño Interior encargado para un departamento en construcción. Se consideró cada detalle para acoplarse al espacio existente y sobretodo a las peticiones de los clientes.